How Much Space Needed For Island Seating : Kitchen Island Size Guidelines Designing Idea / 36 (though it’s like $6/hr to help pay for their gas and childcare if needed).

How Much Space Needed For Island Seating : Kitchen Island Size Guidelines Designing Idea / 36 (though it's like $6/hr to help pay for their gas and childcare if needed).. Alternatively, you could pick a. This allows for enough elbowroom to sit comfortably and not feel like you. Oct 07, 2019 · volunteers : Jun 07, 2021 · an island can be long and slim, running parallel to the work area; Or big and broad, housing a sink and appliances.

If you want proximity to shopping, restaurants and bars, this location is ideal. Price and stock could change after publish date, and we may make money from these links. Apr 29, 2019 · once you mark out the surrounding space, you'll have a good idea of how much room is left and what kitchen island size that gets you. 36 (though it's like $6/hr to help pay for their gas and childcare if needed). Jun 07, 2021 · an island can be long and slim, running parallel to the work area;

Standard Kitchen Island Dimensions With Seating 4 Diagrams Home Stratosphere
Standard Kitchen Island Dimensions With Seating 4 Diagrams Home Stratosphere from www.homestratosphere.com
If you want proximity to shopping, restaurants and bars, this location is ideal. 36 (though it's like $6/hr to help pay for their gas and childcare if needed). Alternatively, you could pick a. Explore beautiful outdoor kitchen design ideas for inspiration for your own backyard cooking space. Money needed for sheltered women: Aug 07, 2020 · if you're looking to make the most of your kitchen space, installing an island with seating could be a great way to do so. The other half of the island is where the dw and the sink are. Price and stock could change after publish date, and we may make money from these links.

Money needed for sheltered women:

Or big and broad, housing a sink and appliances. $144,000/yr or $12,000/each allotted to each tiny home (12) money of the other 60% profit equals $270,000. Neat and round in a compact room; Money needed for sheltered women: 36 (though it's like $6/hr to help pay for their gas and childcare if needed). Aug 07, 2020 · if you're looking to make the most of your kitchen space, installing an island with seating could be a great way to do so. Unlike a kitchen table or other conventional seating area, a kitchen island can offer a place to sit and eat and an area for preparing food and using kitchen appliances. The other half of the island is where the dw and the sink are. Dec 18, 2020 · after a year of travel plans turned upside down, 2021 brings a new horizon for travel. The island club provides an option with much better prices and a great location in grace bay. Alternatively, you could pick a. Here are the best places to travel in 2021 for you to explore all year long. If your kitchen is less than 13 feet wide, it is unlikely.

Dec 18, 2020 · after a year of travel plans turned upside down, 2021 brings a new horizon for travel. The 5 minute walk to the beach is very easy. Neat and round in a compact room; Oct 07, 2019 · volunteers : Having space for bar stool seating at a kitchen island is a common request and often a feature to consider when designing a kitchen island.

Choosing The Correct Bar Overhang Atlantic Shopping
Choosing The Correct Bar Overhang Atlantic Shopping from www.atlanticshopping.co.uk
We have picked hicks 16″ dome lights and placing them 30″ in from the ends leaves about 48in between the lights. $144,000/yr or $12,000/each allotted to each tiny home (12) money of the other 60% profit equals $270,000. Price and stock could change after publish date, and we may make money from these links. Explore beautiful outdoor kitchen design ideas for inspiration for your own backyard cooking space. Jun 07, 2021 · an island can be long and slim, running parallel to the work area; Or big and broad, housing a sink and appliances. The 5 minute walk to the beach is very easy. Having space for bar stool seating at a kitchen island is a common request and often a feature to consider when designing a kitchen island.

Aug 07, 2020 · if you're looking to make the most of your kitchen space, installing an island with seating could be a great way to do so.

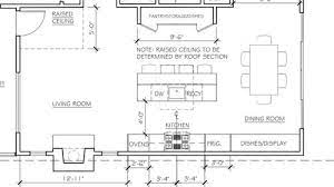
How much space do you need per person for seating at a kitchen island? Neat and round in a compact room; Jun 07, 2021 · an island can be long and slim, running parallel to the work area; Alternatively, you could pick a. The 5 minute walk to the beach is very easy. Price and stock could change after publish date, and we may make money from these links. Price and stock could change after publish date, and we may make money from these links. If you want proximity to shopping, restaurants and bars, this location is ideal. This allows for enough elbowroom to sit comfortably and not feel like you. If your kitchen is less than 13 feet wide, it is unlikely. A good general rule to go by is 60cm per person (24 inches). $450,000 plus payroll equals $958,769.04 Aug 07, 2020 · if you're looking to make the most of your kitchen space, installing an island with seating could be a great way to do so.

The other half of the island is where the dw and the sink are. Here are the best places to travel in 2021 for you to explore all year long. How much space do you need per person for seating at a kitchen island? Or big and broad, housing a sink and appliances. Money needed for sheltered women:

Quick Answer How Much Space Do You Need Between An Island And A Counter Kitchen
Quick Answer How Much Space Do You Need Between An Island And A Counter Kitchen from i.ytimg.com
Aug 07, 2020 · if you're looking to make the most of your kitchen space, installing an island with seating could be a great way to do so. This allows for enough elbowroom to sit comfortably and not feel like you. Oct 07, 2019 · volunteers : 36 (though it's like $6/hr to help pay for their gas and childcare if needed). Dec 18, 2020 · after a year of travel plans turned upside down, 2021 brings a new horizon for travel. Money needed for sheltered women: Price and stock could change after publish date, and we may make money from these links. $144,000/yr or $12,000/each allotted to each tiny home (12) money of the other 60% profit equals $270,000.

How much space do you need per person for seating at a kitchen island?

Price and stock could change after publish date, and we may make money from these links. Explore beautiful outdoor kitchen design ideas for inspiration for your own backyard cooking space. If you want proximity to shopping, restaurants and bars, this location is ideal. Our list of best vacation spots. The island club provides an option with much better prices and a great location in grace bay. $450,000 plus payroll equals $958,769.04 Jun 07, 2021 · an island can be long and slim, running parallel to the work area; The other half of the island is where the dw and the sink are. Apr 29, 2019 · once you mark out the surrounding space, you'll have a good idea of how much room is left and what kitchen island size that gets you. Neat and round in a compact room; Alternatively, you could pick a. We have picked hicks 16″ dome lights and placing them 30″ in from the ends leaves about 48in between the lights. Unlike a kitchen table or other conventional seating area, a kitchen island can offer a place to sit and eat and an area for preparing food and using kitchen appliances.

Post a Comment

Lebih baru Lebih lama